– Bürgerkommune Fraunberg –
06. Juni 2025
Pillkofen – Der Bauhof der Gemeinde Fraunberg gedeiht und liegt voll im Zeitplan. „Die Warmhalle ist gerade am Entstehen“, erläuterte Simon Selmeier, Vorarbeiter der Fa. Hasnbau GmbH und zugleich Gemeinderat der Gemeinde Fraunberg.

Am Bauabschnitt Sozialtrakt und Warmhalle wird derzeit gearbeitet
Der Rohbau des Sozialtraktes ist fertiggestellt und die Dacheindeckung wird demnächst erfolgen. Derzeit werden die Säulen der Einfahrtstore in die Warmhalle erstellt. Insgesamt werden sieben große Zugänge von der Hofseite den Zugang bestmöglich gewähren.

Die Einfahrtstore der Warmhalle sind im Bau
Im Inneren der Warmhalle wird an den Ziegelmauern der Brandwände für Hackschnitzelheizung und Hackschnitzelbunker gebaut. Im linken hinteren Eck entsteht ein Raum, der das Material für die Feldgeschworenen aufnehmen soll.
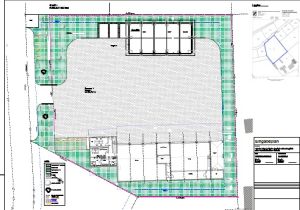
Auf dem 5.300 m2 großen Grundstück „Bauhof“ wird auf der gegenüberliegenden Seite dann noch eine weitere Halle als Kaltlager definiert, gebaut.
Hier die Pläne zu dem Bauvorhaben Gemeine Fraunberg
Text und Fotos: R.H.



